江西洪城水业环保有限公司宜黄县凤冈分公司监测方案1、排污单位基本情况
1、企业基本信息
| 法定代表人 | 邓志强 | 企业曾用名 | |
| 企业类别 | 废水 | 社会信用代码 | 91361026MA38QPKEIA | 
| 方案审核地址 | 江西省 | 抚州市 | 宜黄县 | 
| 中心经度 | 116度 | 中心纬度 | 27度 | 
| 15分 | 33分 | ||
| 17.03秒 | 6.77秒 | ||
| 环保联系人 | 邓志强 | 电话号码 | 13307045533 | 
| 传真号码 | — | 邮编 | 344400 | 
| 是否为VOC企业 | 否 | 自行监测开展方式 | 手工+自动+委托监测 | 
| 行业类别 | 污水处理及其再生利用 | 行业代码 | D4620 | 
| 技术负责人 | 邓志强 | 数据公开时限 | 手工;收到报告后的次日,自动;实时 | 
| 设计处理能力 | 2万吨/日 | 服务范围 | 老城区、百花洲、曹水、水北组团、六里铺组团、河东片区生活污水及周边企业的工业废水(不超过总处理水量的20%) | 
| 排污方式 | 直接排放 | 受纳水体 | 宜黄河(地表水Ⅲ类) | 
2、污染物产生情况
| 废水 | 根据环评及环评批复,我厂主要从事处理城镇生活管网收集的符合相关接管标准的生活污水,脱泥压滤产生的少量污水回流至厂区提升泵房,进行处理。出水排至宜黄河。出水执行《城镇污水处理厂污染物排放标准》(GB18918-2002)一级A标准排放。 | 
| 废气 | 根据环评及环评批复,废气主要为污水及污泥处理过程中产生的恶臭,因环评中的《恶臭污染物排放标准》(GB14554-93)表1无组织排放二级标准中并不包含甲烷,申请延续排污许可证时经与市环保局沟通后确定还是沿用《城镇污水处理厂污染物排放标准》(GB 18918-2002)表4无组织排放二级(新改扩建)标准限值。 | 
| 噪声 | 污水处理提升泵等设备运行过程中产生噪声。根据环评及环评批复,运行期厂界噪声必须达到《工业企业厂界环境噪声排放标准》(GB12348-2008)中的2类及4a类标准。 | 
| 固废 | 根据环评及环评批复,我司污水处理厂固体废物主要为污水处理过程中产生的剩余污泥,其中生化剩余污泥经过二沉池泥水分离,通过剩余污泥泵抽至污泥浓缩池进行浓缩后进入贮泥池,浓缩污泥经叠螺机脱水至含水率80%以下,再经过低温干化使得污泥含水率60%以下。固体废物满足相关稳定化和脱水处理后,再外运至有资质单位进行处置。一年预计产生1460吨。 | 
| 雨水 | 排入GB3838Ⅲ类水域(划定的保护区和游泳区除外)和排入GB3097中二类海域的污水,执行一级标准。参照《污水综合排放标准(GB 8978-1996 )》中表4其他排污单位的一级标准。 | 
3、污染处理设施情况
| 废水治理设施 | 宜黄县凤冈污水处理厂位于江西省抚州市宜黄县林崇线公路东南面。地理坐标东经度116°15′17′,北纬度27°33′6′。项目总占地面积33亩,远期设计建设规模为日处理污水3万吨,处理工艺为A²O工艺,一期土建工程日处理污水2万吨,占地面积26亩,实际安装设备日处理量为2万吨。整个工程于2019年4月正式开工建设, 2020年5月全面竣工,各项设备调试到位,并开始通水试运行. 2020年8月移交江西洪城水业环保有限公司宜黄县凤冈分公司运营。2020年6月份通过省环保局环保验收工作。 宜黄县凤冈污水处理厂A²O工艺,主要污染处理设施包括格栅,提升泵、沉砂池、氧化沟生化降解池,配水井,二沉池,高效沉淀池,纤维转盘,接触消毒池,污泥浓缩池,污泥储泥池,污泥脱水机房等。相关设备设施运行正常,所有污水出水通过唯一的排放口排放至宜黄河,出水水质达到《城镇污水处理厂污染物排放标准》(GB18918-2002)一级A标准排放。 | 
| 废气治理设施 | 脱泥车间废气源通过风管收集至生物滤池处理后进行无组织排放,并且厂界四周都种植了绿化隔离带。 | 
| 噪声治理设施 | 采用低噪音环保设备并通过安装在室内、水下和消音装置及厂区内外种植树木等措施防治噪音。 | 
| 固废治理设施 | 污水处理中的剩余污泥经过贮泥池收集、再经叠螺机压滤脱水,最后低温干化机处理至含水率60%以下。污泥经过稳定化和脱水处理后外运至至有资质单位处置。 | 
二、工艺流程及废水监测点位

工艺流程图(2-1)

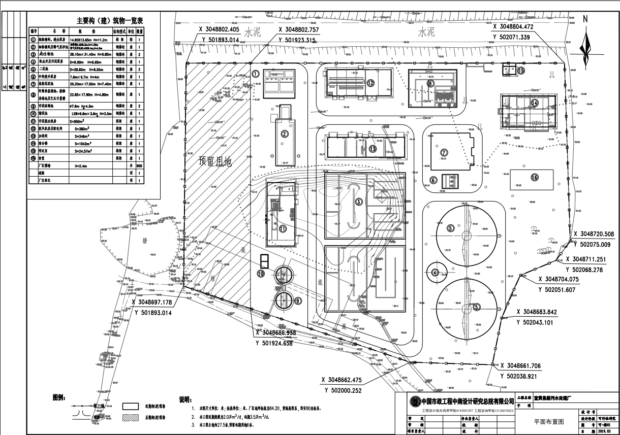
平面布置图(2-2)

监测点位分布图(2-3)
三、无组织废气
本公司大气污染源主要为污水处理过程中散发的恶臭,主要成分为氨气、硫化氢等。应采取加强清洁生产管理和提高厂区绿化率等措施控制废气无组织排放,确保污染物厂界最高浓度满足《城镇污水处理厂污染物排放标准》(GB 18918-2002)表4无组织排放二级标准。

无组织排放废气监测布点示意图(3-1)
监测点位厂区对应编号表(3-2)
| 污染源类型 | 序号 | 监测点位名称 | 排口编号 | 备注 | 
| 废水 | 1 | 厂区进水口 | MW001 | |
| 2 | 厂区废水总排口 | DW001 | ||
| 雨水 | 1 | 雨水监测口 | DW002 | |
| 无组织废气 | 1 | 厂界下风向 | CJ-02、CJ-03、CJ-04、 | 本厂自身编号 | 
| 2 | 厂界上风向 | CJ-01 | 本厂自身编号 | |
| 3 | 厂内(最高体积浓度处) | JW-01 | 本厂自身编号 | |
| JW-02 | 本厂自身编号 | |||
| 噪声 | 1 | 厂界东 | ZS-01 | |
| 2 | 厂界南 | ZS-02 | ||
| 3 | 厂界西 | ZS-03 | ||
| 4 | 厂界北 | ZS-04 | ||
| 地表水监测 | 1 | 上游(0.5km 处) | DBS-01 | 本厂自身编号 | 
| 2 | 下游(1.5km 处) | DBS-02 | 本厂自身编号 | |
| 地下水监测 | 1 | 地下水监测口 | DXS-01 | 本厂自身编号 | 
| 注 1:以环保部门编号为准,如环保部门未进行编号,以企业自行编号为准。 | 
四、监测指标及相关信息
本公司自行监测的具体监测点位、监测指标、监测频次和监测方法见下表。
4.1、无组织废气自行监测及记录信息表
| 序号 | 污染源类别/监测类别 | 排放口编号/监测点位 | 监测点位名称 | 监测指标 | 监测设施 | 排放标准 | 排放限值 | 方法检出限 | 手工监测采样方法及个数 | 手工监测频次 | 手工测定方法 | 手工检测设备 | 其他信息 | 
| 1 | 废气 | CJ-01 | 厂界上风向1 | 臭气浓度 | 手工 | 《城镇污水处理厂污染物排放标准》(GB18918-2002)二级标准排放 | 上限:20(无量纲) | 10(无量纲) | 非连续采样 至少4个 | 1次/半年 | 《环境空气和废气 臭气的测定 三点比较式臭袋法》 HJ 1262-2022 | / | 委托检测 | 
| 2 | 废气 | CJ-02 | 厂界下风向1 | 臭气浓度 | 手工 | 《城镇污水处理厂污染物排放标准》(GB18918-2002)二级标准排放 | 上限:20(无量纲) | 10(无量纲) | 非连续采样 至少4个 | 1次/半年 | 《环境空气和废气 臭气的测定 三点比较式臭袋法》 HJ 1262-2022 | / | 委托检测 | 
| 3 | 废气 | CJ-03 | 厂界下风向2 | 臭气浓度 | 手工 | 《城镇污水处理厂污染物排放标准》(GB18918-2002)二级标准排放 | 上限:20(无量纲) | 10(无量纲) | 非连续采样 至少4个 | 1次/半年 | 《环境空气和废气 臭气的测定 三点比较式臭袋法》 HJ 1262-2022 | / | 委托检测 | 
| 4 | 废气 | CJ-04 | 厂界下风向3 | 臭气浓度 | 手工 | 《城镇污水处理厂污染物排放标准》(GB18918-2002)二级标准排放 | 上限:20(无量纲) | 10(无量纲) | 非连续采样 至少4个 | 1次/半年 | 《环境空气和废气 臭气的测定 三点比较式臭袋法》 HJ 1262-2022 | / | 委托检测 | 
| 5 | 废气 | CJ-01 | 厂界上风向1 | 氨 | 手工 | 《城镇污水处理厂污染物排放标准》(GB18918-2002)二级标准排放 | 上限: 1.5mg/Nm3 | 0.01mg/Nm3 | 非连续采样 至少4个 | 1次/半年 | 环境空气和废气 氨的测定 纳氏试剂分光光度法 HJ 533-2009 | 紫外分光光度计 | 委托检测 | 
| 6 | 废气 | CJ-02 | 厂界下风向1 | 氨 | 手工 | 《城镇污水处理厂污染物排放标准》(GB18918-2002)二级标准排放 | 上限: 1.5mg/Nm3 | 0.01mg/Nm3 | 非连续采样 至少4个 | 1次/半年 | 环境空气和废气 氨的测定 纳氏试剂分光光度法 HJ 533-2009 | 紫外分光光度计 | 委托检测 | 
| 7 | 废气 | CJ-03 | 厂界下风向2 | 氨 | 手工 | 《城镇污水处理厂污染物排放标准》(GB18918-2002)二级标准排放 | 上限: 1.5mg/Nm3 | 0.01mg/Nm3 | 非连续采样 至少4个 | 1次/半年 | 环境空气和废气 氨的测定 纳氏试剂分光光度法 HJ 533-2009 | 紫外分光光度计 | 委托检测 | 
| 8 | 废气 | CJ-04 | 厂界下风向3 | 氨 | 手工 | 《城镇污水处理厂污染物排放标准》(GB18918-2002)二级标准排放 | 上限: 1.5mg/Nm3 | 0.01mg/Nm3 | 非连续采样 至少4个 | 1次/半年 | 环境空气和废气 氨的测定 纳氏试剂分光光度法 HJ 533-2009 | 紫外分光光度计 | 委托检测 | 
| 9 | 废气 | CJ-01 | 厂界上风向1 | 硫化氢 | 手工 | 《城镇污水处理厂污染物排放标准》(GB18918-2002)二级标准排放 | 上限: 0.06mg/Nm3 | 0.0025mg/Nm3 | 非连续采样 至少4个 | 1次/半年 | 《空气和废气监测分析方法》(第四版)国家环境保护总局(2003年)5.4.10(3)中的硫化氢亚甲蓝分光光度法 | 紫外分光光度计 | 委托检测 | 
| 10 | 废气 | CJ-02 | 厂界下风向1 | 硫化氢 | 手工 | 《城镇污水处理厂污染物排放标准》(GB18918-2002)二级标准排放 | 上限: 0.06mg/Nm3 | 0.0025mg/Nm3 | 非连续采样 至少4个 | 1次/半年 | 《空气和废气监测分析方法》(第四版)国家环境保护总局(2003年)5.4.10(3)中的硫化氢亚甲蓝分光光度法 | 紫外分光光度计 | 委托检测 | 
| 11 | 废气 | CJ-03 | 厂界下风向2 | 硫化氢 | 手工 | 《城镇污水处理厂污染物排放标准》(GB18918-2002)二级标准排放 | 上限: 0.06mg/Nm3 | 0.0025mg/Nm3 | 非连续采样 至少4个 | 1次/半年 | 《空气和废气监测分析方法》(第四版)国家环境保护总局(2003年)5.4.10(3)中的硫化氢亚甲蓝分光光度法 | 紫外分光光度计 | 委托检测 | 
| 12 | 废气 | CJ-04 | 厂界下风向3 | 硫化氢 | 手工 | 《城镇污水处理厂污染物排放标准》(GB18918-2002)二级标准排放 | 上限: 0.06mg/Nm3 | 0.0025mg/Nm3 | 非连续采样 至少4个 | 1次/半年 | 《空气和废气监测分析方法》(第四版)国家环境保护总局(2003年)5.4.10(3)中的硫化氢亚甲蓝分光光度法 | 紫外分光光度计 | 委托检测 | 
| 13 | 废气 | JW-01 | 氧化沟 | 甲烷 | 手工 | 《城镇污水处理厂污染物排放标准》(GB18918-2002)二级标准排放 | 上限:1% | 0.06mg/Nm3 | 非连续采样 至少4个 | 1次/年 | 环境空气 总烃、甲烷和非甲烷总烃的测定 直接进样-气相色谱法 HJ 604-2017 | 气相色谱仪 | 委托检测 | 
| 14 | 废气 | JW-02 | 生物除臭系统 | 甲烷 | 手工 | 《城镇污水处理厂污染物排放标准》(GB18918-2002)二级标准排放 | 上限:1% | 0.06mg/Nm3 | 非连续采样 至少4个 | 1次/年 | 环境空气 总烃、甲烷和非甲烷总烃的测定 直接进样-气相色谱法 HJ 604-2017 | 气相色谱仪 | 委托检测 | 
4.2、进水口废水自行监测及记录信息表
| 序号 | 污染源类别/监测类别 | 排放口编号/监测点位 | 排放口名称/监测点位名称 | 监测指标 | 监测设施 | 排放标准 | 排放限值 | 方法检出限 | 自动监测是否联网 | 自动监测仪器名称 | 自动监测设施安装位置 | 自动监测设施是否符合安装、运行、维护等管理要求 | 手工监测采样方法及个数 | 手工监测频次(处理量≥2万吨/日) | 手工测定方法 | 手工检测设备 | 样品保存 | 其他信息 | 
| 1 | 废水 | MW001 | 总进水口 | 化学需氧量 | 自动 | 设计进水水质 | 250mg/L | 10mg/L | 是 | COD在线监测设备 | 进水监测在线站房 | 是 | / | / | / | / | / | 自动监测设备出现故障时开展手工监测,每6小时监测一次 | 
| 2 | 废水 | MW001 | 总进水口 | 总氮(以N计) | 手工 | 设计进水水质 | 35mg/L | 0.05mg/L | / | / | / | / | 混合采样 3个混合样 | 1次/日 | 水质总氮的测定碱性过硫酸钾消解紫外分光光度法HJ636-2012 | 紫外可见分光光度计 | 自动采样器 “冷藏” | / | 
| 3 | 废水 | MW001 | 总进水口 | 氨氮(NH3-N) | 自动 | 设计进水水质 | 30mg/L | 0.02mg/L | 是 | 氨氮在线监测设备 | 进水监测在线站房 | 是 | / | / | / | / | / | 自动监测设备出现故障时开展手工监测,每6小时监测一次 | 
| 4 | 废水 | MW001 | 总进水口 | 总磷(以P计) | 手工 | 设计进水水质 | 3mg/L | 0.01mg/L | / | / | / | / | 混合采样 3个混合样 | 1次/日 | 水质总磷的测定钼酸铵分光光度法GB11893-89 | 紫外可见分光光度计 | 自动采样器 “冷藏” | / | 
| 5 | 废水 | MW001 | 总进水口 | 流量 | 自动 | / | / | / | 是 | 电磁流量计 | 沉砂池与生化池之间 | 是 | / | / | / | / | / | / | 
| 6 | 废水 | MW001 | 总进水口 | 水温 | 自动 | / | / | / | 是 | pH/T在线监测设备 | 沉砂池 | 是 | / | / | / | / | / | 自动监测设备出现故障时开展手工监测,每6小时监测一次 | 
| 7 | 废水 | MW001 | 总进水口 | pH值 | 自动 | 设计进水水质 | 6-9无量纲 | / | 是 | pH/T在线监测设备 | 沉砂池 | 是 | / | / | / | / | / | 自动监测设备出现故障时开展手工监测,每6小时监测一次 | 
‎
‎
‎
4.3出水口废水自行监测及记录信息表
| 序号 | 污染源类别/监测类别 | 排放口编号/监测点位 | 排放口名称/监测点位名称 | 监测指标 | 监测设施 | 排放标准 | 排放限值 | 方法检出限 | 自动监测是否联网 | 自动监测仪器名称 | 自动监测设施安装位置 | 自动监测设施是否符合安装、运行、维护等管理要求 | 手工监测采样方法及个数 | 手工监测频次(处理量≥2万吨/日) | 手工测定方法 | 手工检测设备 | 样品保存 | 其他信息 | 
| 1 | 废水 | DW001 | 出水口 | pH值 | 自动 | 《城镇污水处理厂污染物排放标准》(GB18918-2002)一级A标准排放 | 6-9 无量纲 | / | 是 | pH/T在线监测设备 | 接触消毒 池与巴氏计量槽之间 | 是 | / | / | / | / | / | 自动监测设备出现故障时开展手工监测,每6小时监测一次 | 
| 2 | 废水 | DW001 | 出水口 | 色度 | 手工 | 《城镇污水处理厂污染物排放标准》(GB18918-2002)一级A标准排放 | 30倍 | 2倍 | / | / | / | / | 瞬时采样 3个瞬时样 | 1次/月 | 水质 色度的测定 HJ 1182-2021 | 比色管 | / | 委托检测 | 
| 3 | 废水 | DW001 | 出水口 | 悬浮物 | 手工 | 《城镇污水处理厂污染物排放标准》(GB18918-2002)一级A标准排放 | 10mg/L | 5mg/L | 否 | / | 接触消毒 池与巴氏计量槽之间 | / | 瞬时采样 3个瞬时样 | 1次/月 | GB/T 11901-1989水质悬浮物的测定 重量法 | 万分之一天平 | 冷藏,避光 | 委托检测 | 
| 4 | 废水 | DW001 | 出水口 | 五日生化需氧量 | 手工 | 《城镇污水处理厂污染物排放标准》(GB18918-2002)一级A标准排放 | 10mg/L | 0.5mg/L | / | / | / | / | 瞬时采样 3个瞬时样 | 1次/月 | HJ 505-2009 水质五日生化需氧量(BOD5)的测定稀释与接种法 | 生化培养箱 | 冷藏,避光 | 委托检测 | 
| 5 | 废水 | DW001 | 出水口 | 化学需氧量 | 自动 | 《城镇污水处理厂污染物排放标准》(GB18918-2002)一级A标准排放 | 50mg/L | 10mg/L | 是 | COD在线监测设备 | 出水在线监测房 | 是 | / | / | / | / | / | 自动监测设备出现故障时开展手工监测,每6小时监测一次 | 
| 6 | 废水 | DW001 | 出水口 | 阴离子表面活性剂 | 手工 | 《城镇污水处理厂污染物排放标准》(GB18918-2002)一级A标准排放 | 0.5mg/L | 0.05mg/ L | / | / | / | / | 瞬时采样 3个瞬时样 | 1次/月 | 1、《亚甲蓝分光光度法》 GB 7494-87 2、《水质 总氮、挥发酚、硫化物、阴离子表面活性剂和六价铬的测定 连续流动分析-分光光度法》 | 1、紫外分光光度计 2、连续流动分析仪 | 避光,0-4℃冷藏 注:如果只是冷藏不加保护剂,就要在采样后的24小时内检测,加了保护剂的话就可以在4天内检测。 | 委托检测 | 
| 7 | 废水 | DW001 | 出水口 | 总汞 | 手工 | 《城镇污水处理厂污染物排放标准》(GB18918-2002)一级A标准排放 | 0.001mg/L | 0.04μg/L | / | / | / | / | 瞬时采样 3个瞬时样 | 1次/季度 | 水质 汞、砷、硒、铋和锑的测定 原子荧光法 HJ 694-2014 | 原子荧光光谱仪 | HCl 1%,如水样为中性,1L水样中加浓HCl10ml | 委托检测 | 
| 8 | 废水 | DW001 | 出水口 | 烷基汞 | 手工 | 《城镇污水处理厂污染物排放标准》(GB18918-2002)一级A标准排放 | 不得检出 | 0.02ng/L | / | / | / | / | 瞬时采样 3个瞬时样 | 1次/半年 | 水质 烷基汞的测定 吹扫捕集气相色谱冷原子荧光光谱法 HJ 977-2018 | 全自动烷基汞分析系统 | 如在数小时内样品不能分析,应在样品瓶中预 先加入 CuSO4,加入量为每升 1g,冷藏 | 委托检测 | 
| 9 | 废水 | DW001 | 出水口 | 总镉 | 手工 | 《城镇污水处理厂污染物排放标准》(GB18918-2002)一级A标准排放 | 0.01mg/L | 0.05μg/L | / | / | / | / | 瞬时采样 3个瞬时样 | 1次/季度 | 水质 65种元素的测定 电感耦合等离子体质谱法 HJ 700-2014 | 电感耦合等离子体质谱仪 | 1L 水样中加浓 HNO310 ml | 委托检测 | 
| 10 | 废水 | DW001 | 出水口 | 总铬 | 手工 | 《城镇污水处理厂污染物排放标准》(GB18918-2002)一级A标准排放 | 0.1mg/L | 0.11μg/L | / | / | / | / | 瞬时采样 3个瞬时样 | 1次/季度 | 1、《水质 65种元素的测定 电感耦合等离子体质谱法》HJ 700-2014 2、《水质 铬的测定 火焰原子吸收分光光度法》(HJ 757-2015) | 1、电感耦合等离子体质谱仪 2、原子吸收光谱仪 | 1L水样中加浓HNO3 10ml | 委托检测 | 
| 11 | 废水 | DW001 | 出水口 | 六价铬 | 手工 | 《城镇污水处理厂污染物排放标准》(GB18918-2002)一级A标准排放 | 0.05mg/L | 0.004mg/L | / | / | / | / | 瞬时采样 3个瞬时样 | 1次/季度 | 《水质 六价铬的测定 二苯碳酰二肼分光光度法》 GB 7467-87 | 紫外分光光度计 | NaOH,pH 8~9 | 委托检测 | 
| 12 | 废水 | DW001 | 出水口 | 总砷 | 手工 | 《城镇污水处理厂污染物排放标准》(GB18918-2002)一级A标准排放 | 0.1mg/L | 0.3μg/L | / | / | / | / | 瞬时采样 3个瞬时样 | 1次/季度 | 1、《水质 汞、砷、硒、铋和锑的测定 原子荧光法》 HJ 694-2014 2、《水质 65种元素的测定 电感耦合等离子体质谱法》 HJ 700-2014 | 1、原子荧光光谱仪 2、电感耦合等离子体质谱仪 | HNO3,1 L 水样中加浓 HNO310ml,如用原子荧光法测定,1L水样中加10ml浓HCl | 委托检测 | 
| 13 | 废水 | DW001 | 出水口 | 总铅 | 手工 | 《城镇污水处理厂污染物排放标准》(GB18918-2002)一级A标准排放 | 0.1mg/L | 0.09μg/L | / | / | / | / | 瞬时采样 3个瞬时样 | 1次/季度 | 《水质 65种元素的测定 电感耦合等离子体质谱法》 HJ 700-2014 | 电感耦合等离子体质谱仪 | HNO3,1%,如水样为中性,1L水样中加浓 HNO310ml | 委托检测 | 
| 14 | 废水 | DW001 | 出水口 | 总氮(以N计) | 自动 | 《城镇污水处理厂污染物排放标准》(GB18918-2002)一级A标准排放 | 15mg/L | 0.05mg/L | 是 | 总磷总氮在线监测设备 | 出水在线监测房 | 是 | / | / | / | / | / | 自动监测设备出现故障时开展手工监测,每6小时监测一次 | 
| 15 | 废水 | DW001 | 出水口 | 氨氮(NH3-N) | 自动 | 《城镇污水处理厂污染物排放标准》(GB18918-2002)一级A标准排放 | 5(8)mg/L水温≥12℃时限值为5mg/L,水温<12℃时限值为8mg/L | 0.02mg/L | 是 | 氨氮在线监测设备 | 出水在线监测房 | 是 | / | / | / | / | / | 自动监测设备出现故障时开展手工监测,每6小时监测一次 | 
| 16 | 废水 | DW001 | 出水口 | 总磷(以P计) | 自动 | 《城镇污水处理厂污染物排放标准》(GB18918-2002)一级A标准排放 | 0.5mg/L | 0.01mg/L | 是 | 总磷总氮在线监测设备 | 出水在线监测房 | 是 | / | / | / | / | / | 自动监测设备出现故障时开展手工监测,每6小时监测一次 | 
| 17 | 废水 | DW001 | 出水口 | 石油类 | 手工 | 《城镇污水处理厂污染物排放标准》(GB18918-2002)一级A标准排放 | 1mg/L | 0.06mg/L | / | / | / | / | 瞬时采样 3个瞬时样 | 1次/月 | 水质 石油类和动植物油类的测定 红外分光光度法 HJ 637-2018 | 全自动红外测油仪 | HCl,pH≤2 | 委托检测 | 
| 18 | 废水 | DW001 | 出水口 | 动植物油 | 手工 | 《城镇污水处理厂污染物排放标准》(GB18918-2002)一级A标准排放 | 1mg/L | 0.06mg/L | / | / | / | / | 瞬时采样 3个瞬时样 | 1次/月 | 水质 石油类和动植物油类的测定 红外分光光度法 HJ 637-2018 | 全自动红外测油仪 | HCl,pH≤2 | 委托检测 | 
| 19 | 废水 | DW001 | 出水口 | 粪大肠菌群数/(个/L) | 手工 | 《城镇污水处理厂污染物排放标准》(GB18918-2002)一级A标准排放 | 1000/L | 20 MPN/L | / | / | / | / | 瞬时采样 3个瞬时样 | 1次/月 | 《水质 粪大肠菌群的测定 多管发酵法》 HJ 347.2-2018 | 霉菌培养箱 | 及时分析、及时检测 | 委托检测 | 
| 20 | 废水 | DW001 | 出水口 | 流量 | 自动 | / | / | / | 是 | 明渠流量计 | 接触消毒 池与巴氏计量槽之间 | 是 | / | / | / | / | / | / | 
| 21 | 废水 | DW001 | 出水口 | 水温 | 自动 | / | / | / | 是 | pH/T在线监测设备 | 接触消毒 池与巴氏计量槽之间 | 是 | / | / | / | / | / | 自动监测设备出现故障时开展手工监测,每6小时监测一次 | 
4.4、雨水自行监测及记录信息表
| 序号 | 污染源类别/监测类别 | 排放口编号/监测点位 | 排放口名称/监测点位名称 | 监测指标 | 监测设施 | 排放标准 | 排放限值 | 方法检出限 | 自动监测是否联网 | 自动监测仪器名称 | 自动监测设施安装位置 | 自动监测设施是否符合安装、运行、维护等管理要求 | 手工监测采样方法及个数 | 手工监测频次(处理量≥2万吨/日) | 手工测定方法 | 手工检测设备 | 样品保存 | 其他信息 | 
| 1 | 雨水 | DW002 | 雨水排放口 | pH值 | 手工 | 《污水综合排放标准》(GB8978-1996)中表4其他排污单位一级标准 | 6~9无量纲 | / | / | / | / | / | 瞬时采样 1个瞬时样 | 1次/季度 | 《水质 pH值的测定 电极法》(HJ 1147-2020) | pH计 | / | 委托检测 | 
| 2 | 雨水 | DW002 | 雨水排放口 | 氨氮 | 手工 | 《污水综合排放标准》(GB8978-1996)中表4其他排污单位一级标准 | 15mg/L | 0.025 mg/L | / | / | / | / | 瞬时采样 1个瞬时样 | 1次/季度 | 水质 氨氮的测定 纳氏试剂分光光度法 HJ 535-2009 | 紫外可见分光光度计 | / | 委托检测 | 
| 3 | 雨水 | DW002 | 雨水排放口 | 悬浮物 | 手工 | 《污水综合排放标准》(GB8978-1996)中表4其他排污单位一级标准 | 70mg/L | 5mg/L | / | / | / | / | 瞬时采样 1个瞬时样 | 1次/季度 | 水质悬浮物的测定重量法GB/T 11901-1989 | 万分之一天平 | / | 委托检测 | 
| 4 | 雨水 | DW002 | 雨水排放口 | 化学需氧量 | 手工 | 《污水综合排放标准》(GB8978-1996)中表4其他排污单位一级标准 | 100mg/L | 4mg/L | / | / | / | / | 瞬时采样 1个瞬时样 | 1次/季度 | 水质化学需氧量的测定重铬酸盐法HJ 828-2017 | 标准 COD消解仪 | / | 委托检测 | 
| 注:雨水排放口有流动水排放时按月监测,如监测一年无异常情况,可放宽至每季度开展一次监测 | 
4.5、污泥监测方案
| 监测指标 | 监测频次 | 监测方式 | 监测方法 | 检测设备 | 
| 含水量 | 1次/日 | 手工 | 重量法CJ/T 221-2005\1项 | 千分之一电子天平 | 
4.6、周边环境监测方案
| 监测点位 | 监测指标 | 排放标准 | 排放 限值 | 监测方式 | 监测 频次 | 监测 仪器 | 监测方法 | 样品保存 | 
| 地表水(入河排污口(宜黄河)上游0.5km) | pH值 | 《地表水环境质量标准》(GB3838-2002)表1中Ⅲ类 | 6-9 | 手工 | 3次/年 | PH计 | 水质 PH值的测定 电极法 HJ 1147-2020 | / | 
| 地表水(入河排污口(宜黄河)上游0.5km) | 悬浮物 | 《地表水环境质量标准》(GB3838-2002)表1中Ⅲ类 | / | 手工 | 3次/年 | 电子天平 | 水质 悬浮物的测定 重量法 GB 11901-89 | 冷藏 ,避光 | 
| 地表水(入河排污口(宜黄河)上游0.5km) | 化学需氧量 | 《地表水环境质量标准》(GB3838-2002)表1中Ⅲ类 | 20mg/L | 手工 | 3次/年 | COD消解器 | 水质 化学需氧量的测定 重铬酸盐法 HJ 828-2017 | H2SO4,pH≤2 | 
| 地表水(入河排污口(宜黄河)上游0.5km) | 五日生化需氧量 | 《地表水环境质量标准》(GB3838-2002)表1中Ⅲ类 | 4mg/L | 手工 | 3次/年 | 智能生化培养箱 | 水质 五日生化需氧量的测定 稀释与接种法 HJ 505-2009 | 冷藏 避光 | 
| 地表水(入河排污口(宜黄河)上游0.5km) | 氨氮 | 《地表水环境质量标准》(GB3838-2002)表1中Ⅲ类 | 1mg/L | 手工 | 3次/年 | 分光光度计 | 水质 氨氮的测定 纳氏试剂分光光度法 HJ 535-2009 | H2SO4,pH≤2,冷藏 | 
| 地表水(入河排污口(宜黄河)上游0.5km) | 总磷 | 《地表水环境质量标准》(GB3838-2002)表1中Ⅲ类 | 0.2mg/L | 手工 | 3次/年 | 紫外分光光度计 | 水质 总磷的测定 钼酸铵分光光度法 GB 11893-89 | HCl,H2SO4,pH≤2 | 
| 地表水(入河排污口(宜黄河) 上游0.5km) | 总氮 | 《地表水环境质量标准》(GB3838-2002)表1中Ⅲ类 | 1mg/L | 手工 | 3次/年 | 紫外分光光度计 | 水质 总氮的测定 碱性过硫酸钾消解紫外分光光度法 HJ 636-2012 | H2SO4,pH≤2 | 
| 地表水(入河排污口(宜黄河)上游0.5km) | 石油类 | 《地表水环境质量标准》(GB3838-2002)表1中Ⅲ类 | 0.05mg/L | 手工 | 3次/年 | 紫外分光光度计 | 水质 石油类的测定 紫外分光光度法 HJ 970-2018 | HCl,pH≤2 | 
| 地表水(入河排污口(宜黄河)上游0.5km) | 总氯 | 手工 | 3次/年 | 紫外分光光度计 | 《水质 游离氯和总氯的测定 N, N-二乙基-1, 4-苯二胺分光光度法》HJ 586-2010 | / | ||
| 地表水(入河排污口(宜黄河)下游1.5km) | pH值 | 《地表水环境质量标准》(GB3838-2002)表1中Ⅲ类 | 6-9 | 手工 | 3次/年 | PH计 | 水质 PH值的测定 电极法 HJ 1147-2020 | / | 
| 地表水(入河排污口(宜黄河)下游1.5km) | 悬浮物 | 《地表水环境质量标准》(GB3838-2002)表1中Ⅲ类 | / | 手工 | 3次/年 | 电子天平 | 水质 悬浮物的测定 重量法 GB 11901-89 | 冷藏 ,避光 | 
| 地表水(入河排污口(宜黄河)下游1.5km) | 化学需氧量 | 《地表水环境质量标准》(GB3838-2002)表1中Ⅲ类 | 20mg/L | 手工 | 3次/年 | COD消解器 | 水质 化学需氧量的测定 重铬酸盐法 HJ 828-2017 | H2SO4,pH≤2 | 
| 地表水(入河排污口(宜黄河)下游1.5km) | 五日生化需氧量 | 《地表水环境质量标准》(GB3838-2002)表1中Ⅲ类 | 4mg/L | 手工 | 3次/年 | 智能生化培养箱 | 水质 五日生化需氧量的测定 稀释与接种法 HJ 505-2009 | 冷藏 避光 | 
| 地表水(入河排污口(宜黄河)下游1.5km) | 氨氮 | 《地表水环境质量标准》(GB3838-2002)表1中Ⅲ类 | 1mg/L | 手工 | 3次/年 | 分光光度计 | 水质 氨氮的测定 纳氏试剂分光光度法 HJ 535-2009 | H2SO4,pH≤2,冷藏 | 
| 地表水(入河排污口(宜黄河)下游1.5km) | 总磷 | 《地表水环境质量标准》(GB3838-2002)表1中Ⅲ类 | 0.2mg/L | 手工 | 3次/年 | 紫外分光光度计 | 水质 总磷的测定 钼酸铵分光光度法 GB 11893-89 | HCl,H2SO4,pH≤2 | 
| 地表水(入河排污口(宜黄河)下游1.5km) | 总氮 | 《地表水环境质量标准》(GB3838-2002)表1中Ⅲ类 | 1mg/L | 手工 | 3次/年 | 紫外分光光度计 | 水质 总氮的测定 碱性过硫酸钾消解紫外分光光度法 HJ 636-2012 | H2SO4,pH≤2 | 
| 地表水(入河排污口(宜黄河)下游1.5km) | 石油类 | 《地表水环境质量标准》(GB3838-2002)表1中Ⅲ类 | 0.05mg/L | 手工 | 3次/年 | 紫外分光光度计 | 水质 石油类的测定 紫外分光光度法 HJ 970-2018 | HCl,pH≤2 | 
| 地表水(入河排污口(宜黄河)下游1.5km) | 总氯 | 手工 | 3次/年 | 紫外分光光度计 | 《水质 游离氯和总氯的测定 N, N-二乙基-1, 4-苯二胺分光光度法》HJ 586-2010 | / | ||
| 备注:1.采用含氯化学品对污水进行消毒的,需要监测总氯;2.有明确要求的特征指标;3.监测频次为丰水期、枯水期、平水期各一次。 4.若上游有支流,在支流后取样监测,若下流有支流,在支流前取样监测。 | 
4.7、厂界噪声监测方案
| 监测点位 | 监测指标 | 排放标准 | 排放限值 | 监测方式 | 监测频次 | 监测方法 | 
| 东(ZS-01) | 等效连续A声级 | 《工业企业厂界环境噪声排放标准》(GB12348-2008) 2类标准 | 昼间 60dB;夜间 50dB | 手工 | 1次/1季度 | 工业企业厂界环境噪声排放标准 GB 12348-2008中的2类及4a类标准 | 
| 南(ZS-02) | 等效连续A声级 | 《工业企业厂界环境噪声排放标准》(GB12348-2008) 2类标准 | 昼间 60dB;夜间 50dB | 手工 | 1次/1季度 | 工业企业厂界环境噪声排放标准 GB 12348-2008中的2类及4a类标准 | 
| 西(ZS-03) | 等效连续A声级 | 《工业企业厂界环境噪声排放标准》(GB12348-2008) 2类标准 | 昼间 60dB;夜间 50dB | 手工 | 1次/1季度 | 工业企业厂界环境噪声排放标准 GB 12348-2008中的2类及4a类标准 | 
| 北(ZS-04) | 等效连续A声级 | 《工业企业厂界环境噪声排放标准》(GB12348-2008) 2类标准 | 昼间 60dB;夜间 50dB | 手工 | 1次/1季度 | 工业企业厂界环境噪声排放标准 GB 12348-2008中的2类及4a类标准 | 
五、企业自行监测设备及人员信息
5.1、监测设备及人员
| 手工监测设备、样品保存方法及监测人员 (委托监测的不填) | 手工监测设备 | 废水 | 手工监测设备 | 
| 废气 | / | ||
| 样品保存方法 | 废水 | 冷藏 | |
| 废气 | / | ||
| 监测人员数量 | 化验班(3名) | ||
| 自动监测设备及人员 | 自动监测设备 | 废水 | 自动监测设备 | 
| 废气 | / | ||
| 运维单位及人员数量 | 江西鼎智检测有限公司(2名) | ||
| 委托监测指标及单位名称 | 委托监测指标 | 动植物油、石油类、阴离子表面活性剂、总砷、总铅、六价铬、总铬、总镉、烷基汞、总汞、粪大肠杆菌、氨、硫化氢、臭气浓度、甲烷、噪声及污泥相关指标。 | |
| 委托监测单位名称 | 江西鼎智检测有限公司 | 
5.2、自动监测设备
| 监测项目 | 监测设备名称 | 数量 | 型号 | 生产厂家 | 
| 出水pH值 | pH/T水质分析仪 | 1 | Model SC200型 | 哈希水质分析仪器(上海)有限公司 | 
| 出水水温 | 1 | |||
| 出水氨氮(NH3-N) | 氨氮水质分析仪 | 1 | Amtax Compact | 哈希水质分析仪器(上海)有限公司 | 
| 出水总磷(以P计) | 在线总磷总氮一体机 | 
 | NPW160 | 哈希水质分析仪器(上海)有限公司 | 
| 出水总氮(以N计) | NPW160 | 哈希水质分析仪器(上海)有限公司 | ||
| 出水化学需氧量 | COD水质分析仪 | 1 | CODMax II | 哈希水质分析仪器(上海)有限公司 | 
| 出水流量 | 明渠流量计 | 1 | WL-1A1 | 北京九波声迪科技有限公司 | 
| 进水PH值 | pH/T水质分析仪 | 1 | Model SC200型 | 哈希水质分析仪器(上海)有限公司 | 
| 进水氨氮(NH3-N) | 氨氮水质分析仪 | 1 | Amtax Compact | 哈希水质分析仪器(上海)有限公司 | 
| 进水化学需氧量 | COD水质分析仪 | 1 | CODMax II | 哈希水质分析仪器(上海)有限公司 | 
| 进水流量 | 电磁流量计 | 1 | MAG6000 | 西门子(中国)有限公司 | 
5.3、手工监测设备
| 监测设备名称 | 数量 | 型号 | 生产厂家 | 
| 智能回流消解仪 | 1 | 6B-6C | 江苏盛奥华环保科技有限公司 | 
| PH计 | 1 | PHS-3C | 上海牧晨电子技术有限公司 | 
| 精密生化培养箱 | 1 | DHI24D | 天津市泰斯仪器有限公司 | 
| 万分之一天平 | 1 | FA2004B | 上海佑科仪器仪表有限公司 | 
| 紫外可见光光度计 | 1 | UV-5100 | 上海元析仪器有限公司 | 
| 紫外可见光光度计 | 1 | MODEL752 | 上海现科分光仪器有限公司 | 
| 水分测定仪 | 1 | MB23ZH | 奥豪斯仪器(常州)有限公司 | 
| 千分之一天平 | 1 | PX223ZH/E | 奥豪斯仪器(常州)有限公司 | 
| 电热恒温干燥箱 | 1 | DHG-9202-1 | 上海鸿都电子科技有限公司 | 
| 立式压力灭菌锅 | 1 | DSX-30L | 上海申安医疗器械厂 | 
| 箱式电阻炉 | 1 | SX-4-10 | 天津天泰仪器有限公司 | 
六、企业治理设施
6.1、废气治理设施(无组织)
| 设施名称 | 所在排放设备 | 设施类别 | 处理工艺 | 
| 绿化带 | 污水及污泥处理过程中产生的恶臭 | / | 设置卫生防护距离,并在厂界四周种植了绿化隔离带 | 
| 恶臭气体处理DA001 | 低温干化 | 除臭 | 生物滤池除臭 | 
6.2、废水治理设施
| 设施名称 | 处理方法 | 处理能力 | 处理工艺 | 
| 粗格栅、细格栅、沉砂池、 | 物理处理 | 每组10000吨/天,共2组 | 格栅+旋流沉砂池 | 
| 氧化沟、配水井、二沉池 | 生物处理 | 每组10000吨/天,共2组 | 氧化沟+二沉池 | 
| 高效沉淀池、滤布滤池 | 深度处理 | 每组10000吨/天,共2组 | PAC+PAM+滤布过滤 | 
| 接触消毒池 | 化学处理 | 20000吨/天 | 次氯酸钠消毒 | 
6.3、污泥治理设施
| 设施名称 | 处理方法 | 处理能力 | 处理工艺 | 
| 浓缩池、均质池 | 物理处理 | 133.3m³/d | 浓缩沉降 | 
| 叠螺机 | 机械脱水 | 2m³/h | PAM+压滤 | 
| 干化机 | 低温干化 | 脱水后污泥量10吨/天 | 低温干化 | 
7、样品采集和保存
1、样品的采样按照HJ91.1-2019执行:
1.1采样时应保证采样点的位置准确。
1.2认真填写采样记录表,字迹应端正清晰,保证采样按时、准确、安全。
1.3测定油类的水样,应在水面至水面下 300 mm 采集柱状水样,并单独采样,全部用于测定。采样瓶不能用采集的水样冲洗。
1.4测溶解氧、生化需氧量和有机污染物等项目时的水样,必须注满容器,不留空间,并用水封口。
1.5测定水温、pH值、色度、油类、五日生化需氧量、溶解氧、余氯、粪大肠菌群、悬浮物等项目要单独采样。
1.6在采样期间必须避免样品受到污染。应该考虑到所有可能的污染来源,必须采取适当的控制措施以避免污染。
2、样品的保存按照HJ91.1-2019执行:
2.1各种水质的水样,从采集到分析这段时间内,由于物理的、化学的、生物的作用会发生不同程度的变化,这些变化使得进行分析时的样品已不再是采样时的样品,为了使这种变化降低到最小的程度,必须在采样时对样品加以保护。
2.2最大限度地防止容器及瓶塞对样品的污染。
2.3容器壁应易于清洗、处理,以减少如重金属或放射性核类的微量元素对容器的表面污染。
2.4容器或容器塞的化学和生物性质应该是惰性的,以防止容器与样品组分发生反应。如测氟时,水样不能贮于玻璃瓶中,因为玻璃与氟化物发生反应。
2.5防止容器吸收或吸附待测组分,引起待测组分浓度的变化。微量金属易于受这些因素的影响,其他如清洁剂、杀虫剂、磷酸盐同样也受到影响。
3、地表水与废气的采集及保存方法
3.1、地表水的采集按照《地表水环境质量监测技术规范》HJ 91.2-2022 执行,采样方法按照以下要求执行。
3.1.1、在同一监测断面分层采样时,应自上而下进行,避免不同层次水体混扰;
3.1.2、除标准分析方法有特殊要求的监测项目外,采样器、静置容器和样品瓶在使用前应先用水样分别荡洗2~3次;
3.1.3、采样时不可搅动水底的沉积物。除标准分析方法有特殊要求的监测项目外,采集的水样倒入静置容器中,保证足够用量,自然静置30 min。自然静置时,使用防尘盖遮挡,避免灰尘污染;
3.1.4、使用虹吸装置取上层不含沉降性固体的水样,移入样品瓶,虹吸装置进水尖嘴应保持插至水样表层50 mm以下位置。
3.2、废气采集方法。
无组织废气采样按《大气污染物无组织排放监测技术导则》HJ/T 55—2000执行。
3.3、地表水与废气的保存方法
| 样品类别 | 检测项目 | 保存方式 | 
| 地表水 | PH值 | 采集后立即密封保存,尽量现场测定 | 
| 悬浮物 | 冷藏,避光 | |
| 化学需氧量 | 用硫酸酸化,pH≤2 | |
| 五日生化需氧量 | 1~5℃暗处冷藏 | |
| 氨氮 | 用硫酸酸化,pH≤2 | |
| 总磷 | 用硫酸酸化,盐酸酸化至pH≤2 | |
| 总氮 | 用硫酸酸化,pH 1~2 | |
| 石油类 | 用 盐酸 酸化至 pH≤2 | |
| 总余氯 | 避光,尽量现场测定 | |
| 废气 | 氨 | 避光,冷藏 | 
| 硫化氢 | 避光,冷藏 | |
| 臭气浓度 | 避光,室温 | 
八、监测质量保证与质量控制措施
(一)污水厂化验室质量保证与控制措施
1、质量保证
1.1、建立质量体系
严格按照国家认监委国认实〔2016〕33号文件及《检验检测机构资质认证评审准则》要求建立了质量管理体系。由质量负责人主导,进行了宣贯。工作中按照评审准则及公司体系文件要求开展各项检测工作并持续改进质量管理体系。
从事污水监测的监测人员、监测仪器与设备设施等按《检验检测机构资质认定能力评价 检验监测机构通用要求》RB/T 214-2017、《HJ 630、HJ/T 373》 等相关内容执行。
污水厂检测人员: 吴梦菲、林菲、李兰娥
污水厂主要检测仪器与设备: 智能回流消解仪、PH计、生化培养箱、电热恒温干燥箱、紫外可见光光度计、立式压力灭菌锅、红外线快速水分测定仪、千分之一天平
1.2、监测设施与环境
公司具备固定的适合开展检测工作的实验场所。配备了适合开展工作的设施及满足检测工作的需要的环境条件。
1.3、监测仪器设备和实验试剂
公司监测仪器设备均按照《检验检测机构资质认定评审准则》的以及国家强检计量器具要求进行了检定、校准,在用所有监测仪器设备均在校准(或检定)有效期内;公司实验试剂均按照项目分析方法标准进行采购并验收,确保分析过程中实验试剂适用性,符合监测工作项目分析的需要。
1.4、监测方法技术能力验证
按照国家标准分析方法要求,污水厂对检测能力范围内所有项目的检出限、精密度、准确度等指标进行了方法验证,验证结果均符合方法标准要求。
2、质量控制
2.1、检测过程质量控制:
污水厂化验室的质控措施包括全程序空白样、平行样、加标回收或质控样的测定,以及仪器仪表的校准。具体措施如下:
空白样:化验室对分析的所有污染因子实施全程序空白样,每批样品检测必带空白样检测,以屏蔽其他外在因子对水样分析结果造成影响;
平行样:对厂部所有分析水样做平行样检测,以减少实验误差对水样结果的影响;
加标回收或质控样:按检测规范要求,厂部会对检测的污染因子进行加标回收或者质控样品的测定,以验证实验结果的准确性;
仪器仪表校准:每年定期委托有资质的第三方公司对化验室仪器仪表进行调试校准,并出具校准报告;化验人员按规范对标准曲线和标准物质进行校准和标定,用标准物质对常用仪器如pH计、分光光度计等进行校准并记录。
(二)第三方检测质量保证与质量控制措施
1、质量保证:
1.1、对第三方的检测要求:
1.1.1、本污水厂委托检测的要求(检测项目、采样点位、检测频率、检测因子),第三方检测单位的检测能力应达到或优于本污水厂的要求,且符合国家有关标准和规范要求;
1.1.2、 拥有独立的专项检测实验室;
1.1.3、实验室有相关的内部质量控制管理和外部质量控制管理。
1.1.4、 需配备实验所需的检测仪器;使用的仪器设备需定期进行检定合格和校准并符合相关要求。
1.1.5、按照《水质采样 样品的保存和管理技术规定》HJ493-2009规范要求,保障样品及时进入实验室;
1.1.6、样品采样、运输、检测、留样由第三方检测机构自行负责。
1.1.7、第三方检测机构采样后,按国家标准要求进行检测、填写原始记录表、出具监测报告并拍照。
1.1.8、第三方检测机构应在合同规定的时间内将每次检测的采样及样品流转记录、检测及原始记录、加盖鲜章的检测报告扫描件发送至指定邮箱并寄送纸质版至我公司。
2、第三方内部质量控制活动
2.1第三方内部质量控制技术校核
(1)每次检测样品前均制作标准曲线或应用标准溶液校准标准曲线。
(2)定期使用有证标准物质进行内部质量控制活动。
(3)使用相同或不同的方法进行重复检测。
(4)分析一个样品的不同特性结果的相关性。
(5)密码平行样品、加标样品检测等考核。
(6)对所得检测结果测量不确定度进行评定。
(7)细菌检测培养基应用参考菌种进行灵敏度实验。
2.2第三方内部质量控制计划
(1)检测部根据质量控制计划,针对不同检测项目安排开展工作。
(2)内部开展的一切质控活动的情况均应纳入每年的管理评审,进行评价。
(3)档案管理员应按质量控制的计划,及时收集有关资料并编号归档保存。
2.3、委托方对第三方检测公司的质控措施
2.3.1、查看第三方检测公司的CMA资质,需有资质检测委托的相关项目,及相应检测报告、采样及样品流转、原始记录是否符合相关标准规范;
2.3.2、查看第三方检测公司CMA认证的实验室,是否配备有相应的仪器设备及人员,所采用的检测方法是否符合相应标准规范的要求;
2.3.3、对第三方检测公司实施质控样盲样比对,频次是一年1-3次;
2.3.4、查看第三方检测公司对委托检测合同条款的履行情况。
2.4、检测及结果质量控制
2.4.1、综合部对委托检测协议书、接收样品、唯一性编号标识、检测报告领取等环节进行控制,保证实验室能充分理解客户的检测要求、检测样品的完整性,质量管理部根据委托检测协议书、检测原始记录以及其他相关材料起草检测报告,核查无误。
2.4.2、检验检测工作由培训合格的、有相关技术能力和专业背景,经本公司能力确认并由最高管理者授权的人员进行。
2.4.3、使用定期进行检定合格和校准符合要求的仪器设备,用于检验检测活动。按计划开展仪器设备的期间核查工作,保持其原有状态,防止使用不符合技术规范要求的设备。
2.4.4、尽可能使用有证标准物质,按计划开展标准物质期间核查工作,确保相关检测的结果能够溯源到国家基准。
2.4.5、对影响检测结果的化学试剂等消耗品进行质量验证,保证其使用不影响最终检测结果和质量。
2.4.6、定期开展标准查新和更换,保证检测室现场使用的检测标准、作业指导书均为现行有效版本。
2.4.7、对现场环境条件及设施进行有效监控,保证环境条件和相关设施符合检验检测活动要求。
2.4.8、检测部质量监督员对涉及检测结果的各项活动进行充分监督,尽可能运用统计技术对实验室的检测结果质量进行控制。
2.5、检测报告质量控制
2.5.1、检测报告编制人员、各级报告审查人员检查有关检测记录、检测方法、报告格式、结果判定是否满足要求,授权签字人对报告的正确性负责。
2.5.2、报告检查中,无论哪个环节发现问题,及时反馈,及时纠正,实现对报告质量的有效控制。
(五)在线运维质量保证与质量控制措施
对水污染源在线监测系统各监测仪每月进行不少于一次手动/自动校准,至少进行一次实际水样比对试验和质控样试验,对上位机数据、仪表数据、数采仪数据、在线平台数据进行不少于一次的一致性比对、校准。
1、运维技术要求
对 CODCr、TOC、NH3-N、TP、TN 水质自动分析仪按照 HJ-355 的要求定期进行自动标样核查和自动校准,自动标样核查结果应满足HJ-355表1要求。
对 CODCr、TOC、NH3-N、TP、TN、pH 水质自动分析仪、温度计及超声波明渠流量计按照HJ-355要求定期进行实际水样比对试验,比对试验结果应满足HJ-355表1的要求,实际水样国家环境监测分析方法标准。
2、校验、比对试验和质控样测试工作要求。
2.1必要时对设备进行量程漂移、零点漂移和重复性测试。
(1)CODCr自动监测仪的量程漂移、零点漂移和重复性测试方法见HJ377-2019《化学需氧量(CODCr)水质在线自动监测仪技术要求及检测方法》。
(2)氨氮自动监测仪的量程漂移、零点漂移和重复性测试方法详见HJ/T101-2019《氨氮水质在线自动监测仪技术要求及检测方法》
(3)总磷总氮的量程漂移、零点漂移和重复性测试方法见HJ103-03《总磷水质自动分析仪技术要求》、HJ102-03《总氮水质自动分析仪技术要求》,具体操作参照各仪器使用说明书。
(4)操作参照各仪器使用说明书。
3、与标准方法比对试验
除流量外,运维人员每月应对每个站点所有自动分析仪至少进行1次自动监测方法与实验室标准方法的比对试验,试验结果应满足HJ 355表1规定的要求。
4、质控样试验
运维人员每月应对每个站点所有自动分析仪至少进行1次质控样试验,采用国家认可的两种浓度的质控样进行试验,一种为接近废水浓度的质控样品,另一种为超过相应排放标准浓度的质控样品,每种样品至少测定2次,质控样测定的相对误差不大于标准值的±10%。
5、有效数据率
以月为周期,计算每个周期内水污染源在线监测仪实际获得的有效数据的个数占应获得的有效数据的个数的百分比不得小于 90%,有效数据的判定参见 HJ-356 的相关规定。
6、其他质量控制要求
6.1应按照 HJ-91.1、HJ-493 以及本标准的相关要求对水样分析、自动监测实施质量控制。
6.2对某一时段、某些异常水样,应不定期进行平行监测、加密监测和留样比对试验。
6.3水污染源在线监测仪器所使用的标准溶液应正确保存且经有证的标准样品验证合格后方可使用。
九、监测信息公开
我公司在省市级环境保护主管部门统一组织建立的公布平台上公开自行监测信息,并至少保存五年。公开内容:企业基础信息和监测数据一并公布,若基础信息和自行监测方案有调整变化时,将在变更后的五日内公布。公开时限:监测数据将于每次监测完成后的次日公布,每年一月底前公布上年度自行监测年度报告。
 
       
     
                   
                   
                   
    